Rock Hill
Team Hoke Real Estate
Welcome to Rock Hill
Homes for Sale In Rock Hill
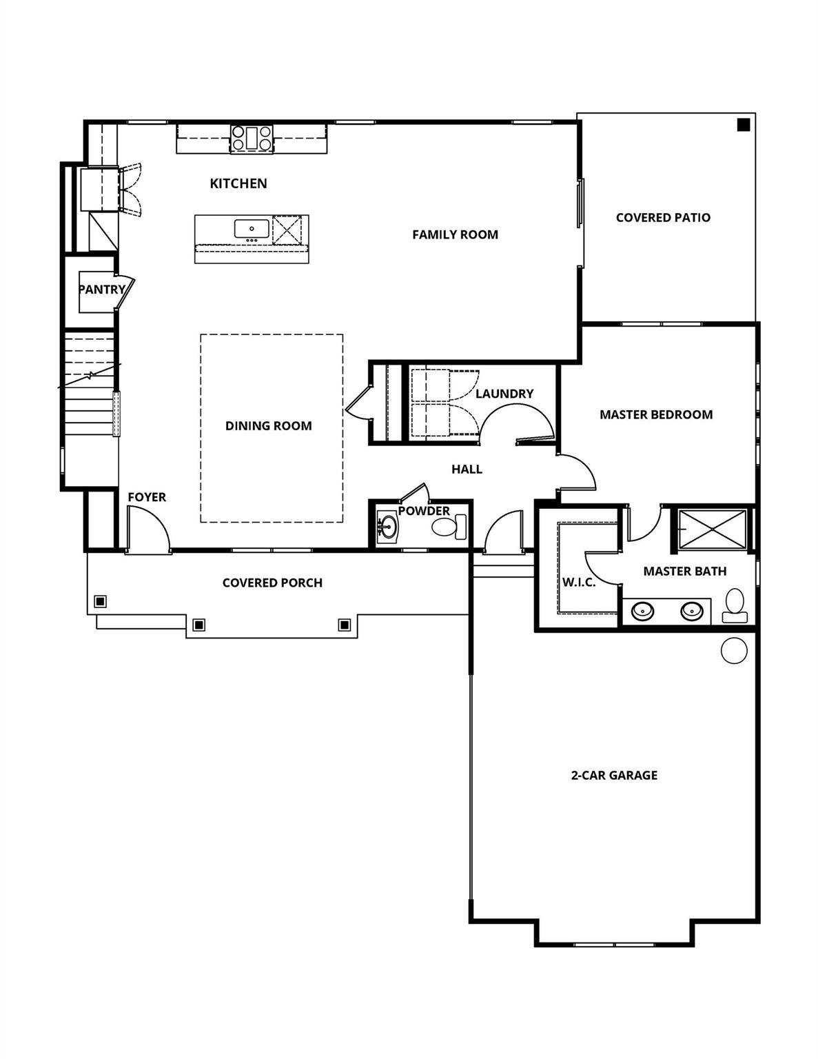
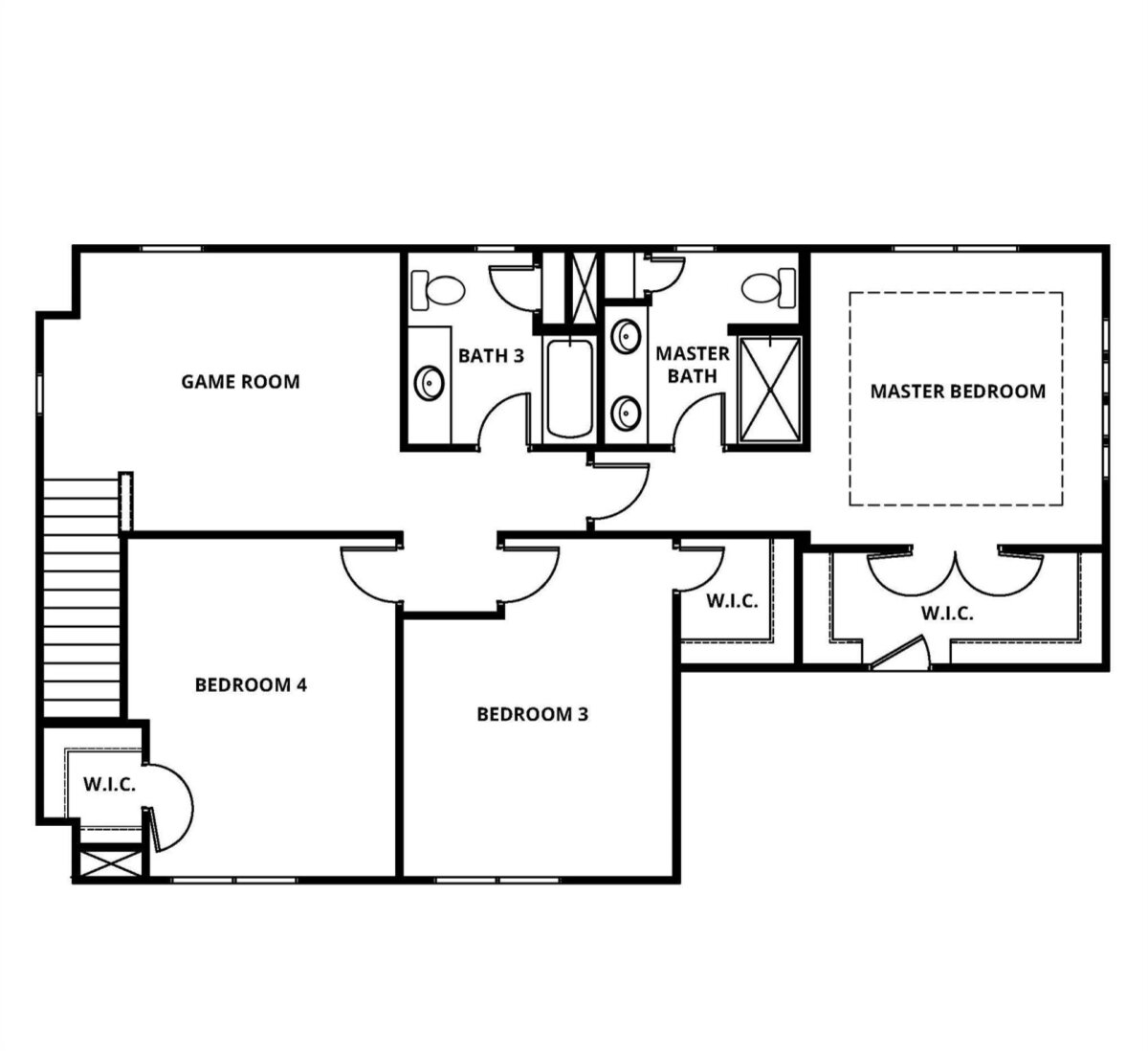
The Richland floor plan is a brilliantly designed home that provides the space and flexibility that you desire. The main floor of this two-story home showcases an open family room located directly off the fully equipped kitchen and dining area. One of the two incredible master retreats is tucked in the back corner of the home providing a private escape to unwind at the end of the day. The home is set up perfectly for guests or the multigenerational household. The second story of the Richland also provides tons of space. Here, you will find a game room where you can set up a pool table or even convert into a media room. Off the game room, you have three secondary bedrooms, including an additional master bedroom, and two full bathrooms. With its flexible layout, the Richland will accommodate your family's needs for years to come. Please ask about our builder incentives.
| MLS#: | 4335983 |
| Price: | $597,900 |
| Square Footage: | 2588 |
| Bedrooms: | 4 |
| Bathrooms: | 3.1 |
| Acreage: | 0.32 |
| Year Built: | 2025 |
| Type: | Single Family Residence |
| Listing courtesy of: | LGI Homes NC LLC - msceau@lgihomes.com |
Contact An Agent:




























