Rock Hill
Team Hoke Real Estate
Welcome to Rock Hill
Homes for Sale In Rock Hill
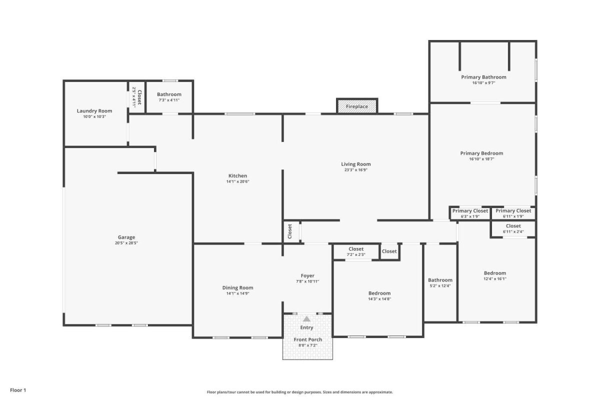
Nestled on a full over an acre in a quiet cul-de-sac, this beautifully maintained brick ranch offers the perfect blend of space, privacy & functionality. NO HOA! Enjoy the tranquility of country living while staying just minutes from Rock Hill’s shopping, dining, recreation & top-rated schools. Inside the home features a grand entry foyer, a bright, open layout with spacious dining & living areas centered around a cozy fireplace. With 3 bedrooms & 2.5 baths, there’s room for family, guests, or a home office. Car enthusiasts, hobbyists & DIY lovers will appreciate the attached side 2 car garage with a new garage door! You have a dedicated workshop area offering ample storage & space for projects, tools, RV, boat or recreational equipment. 50 Amp Installed for Boat/RV. Closet space galore! Beautiful new quartz kitchen counters, wine chiller, 2024 appliances. Huge laundry area. Dual Smart LED light up mirrors/medicine cabinets in primary bathroom! Interior freshly painted as is exterior trim. Wood, Carpeting and Tile flooring. Ceiling fans throughout! A new Bladder tank which provides pressurized water. Step outside to enjoy peaceful mornings & evenings on your rear patio & Your level lot provides endless opportunities for outdoor living, gardening, or even adding a pool. All appliance convey! Updates Galore! More to tell you! So much to show you! We are eagerly looking forward to welcoming you!
| MLS#: | 4347009 |
| Price: | $549,900 |
| Square Footage: | 2471 |
| Bedrooms: | 3 |
| Bathrooms: | 2.1 |
| Acreage: | 1.09 |
| Year Built: | 1991 |
| Type: | Single Family Residence |
| Listing courtesy of: | Lake Realty - marshambringsuhome@gmail.com |
Contact An Agent:































