Plaza Midwood
Team Hoke Real Estate
Welcome to Plaza Midwood
Homes for Sale In Plaza Midwood
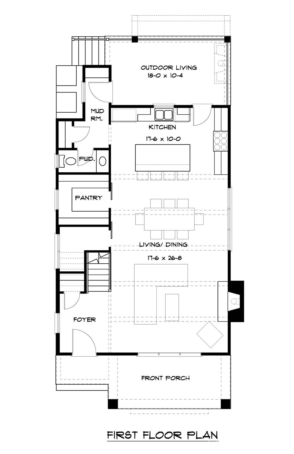
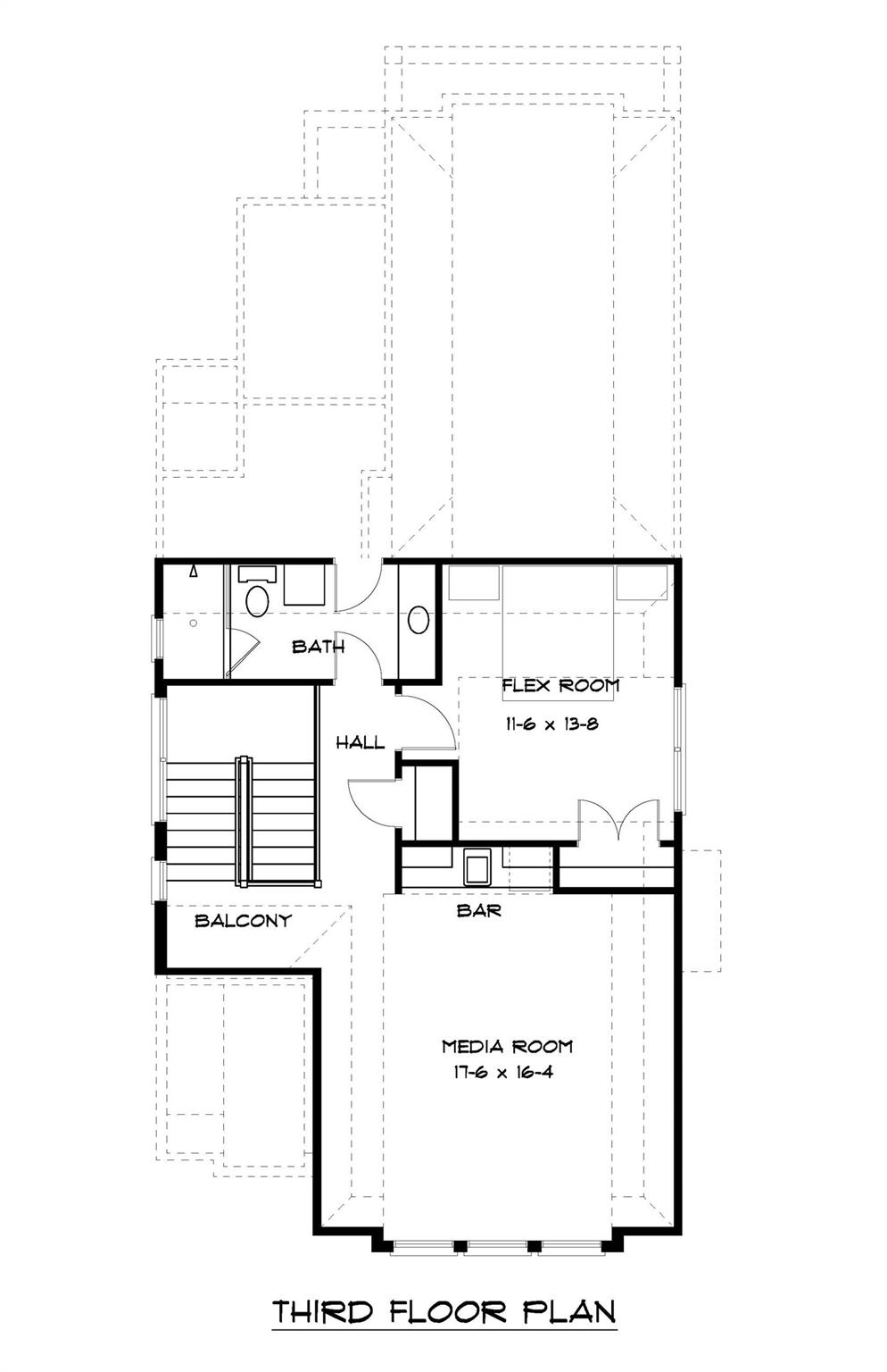
The Yadkin design is Grandfather Homes’ reimagined take on the classic NoDa bungalow, modernized with conveniences like 2-car detached garage and smart home technology. Thoughtfully designed in partnership with Elite Design Group, this residence features an open-concept main level anchored by a Thermador kitchen with oversized island that flows seamlessly into the dining area and living room with gas fireplace. The primary suite showcases a spa-inspired bathroom and generous walk-in closet. The third level expands your living possibilities with a spacious media room featuring a wet bar and an adjoining bedroom suite ideal for visitors or a private home office. Nestled within an intimate streetscape of nine custom homes in The Heirloom at Mattie Rose, this property blends luxury, sustainability, and effortless access to NoDa’s dining, nightlife, and creative culture. It’s true “art-itectureâ€â€”design elevated for everyday living.
| MLS#: | 4323082 |
| Price: | $1,650,000 |
| Square Footage: | 3039 |
| Bedrooms: | 4 |
| Bathrooms: | 3.1 |
| Acreage: | 0.11 |
| Year Built: | 2026 |
| Type: | Single Family Residence |
| Listing courtesy of: | Grandfather Homes Inc. - matt@grandfatherhomes.com |
Contact An Agent:









