Cotswold
Team Hoke Real Estate
Welcome to Cotswold
Homes for Sale In Cotswold
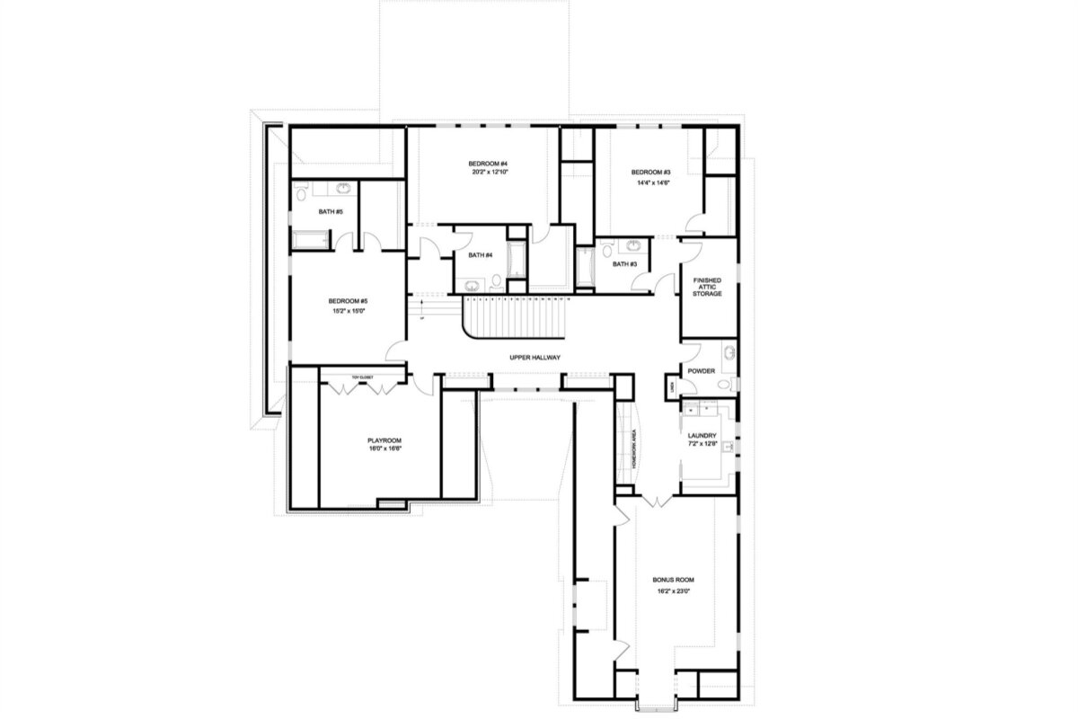
Construction is underway on this 5,600+ sq. ft custom home, and you still have the rare opportunity to make it your own. Unlike most new builds that are completed before you walk through the door, this one gives you the chance to personalize some of the details that matter most. From flooring, fixtures and colors, your selections can bring your vision to life. Foundation is in & incapsilated, the rough carpentry, dimensional roof shingles. rough electrical, rough plumbing, rough HVAC, and spray foam insulation is done. Ready for sheetrock / drywall next. Now comes the fun: there still is a little time for you to choose some finishes and features that will turn this house into your dream home. If making every decision feels overwhelming, we can share our vision with you and you can decide how much or how little you’d like to customize. The sooner you get involved, the more opportunities you’ll have to make those key selections and leave your mark on the home. Start gathering your inspiration—this is your chance to create something truly remarkable. Projected construction completion date of May/June 2026.
| MLS#: | 4306082 |
| Price: | $2,750,000 |
| Square Footage: | 5622 |
| Bedrooms: | 5 |
| Bathrooms: | 4.2 |
| Acreage: | 0.31 |
| Year Built: | 2025 |
| Type: | Single Family Residence |
| Listing courtesy of: | Roma Real Estate Inc. - stevekatsaros22@gmail.com |
Contact An Agent:
























