Clover
Team Hoke Real Estate
Welcome to Clover
Homes for Sale In Clover
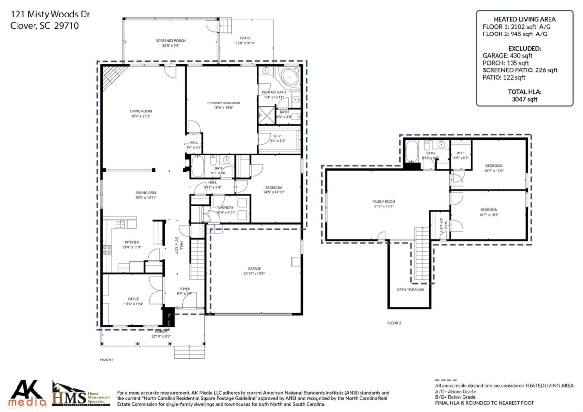
You will fall in love with this absolutely beautiful ALL-BRICK home in Lake Wylie!! The spacious screen porch with a vaulted ceiling was added in 2023 and overlooks the private yard that backs to an HOA-owned tree buffer. The unique floorplan features the primary suite and a guest bedroom with an adjacent full bath on the main level, plus two more bedrooms with walk-in closets, a third full bath and a large loft/bonus room upstairs. The main level also has an office with French doors, a spacious kitchen & dining area, and a large great room with a gas fireplace, large windows and a doorway to the screen porch. The primary suite has a tile shower, separate vanities, a garden tub and a spacious walk-in closet. Other notable features include a wooden staircase, wood floors throughout the main living area, built-in shelving in the office, and storage under the screen porch. The crawlspace is encapsulated with a dehumidifier, the roof was replaced in 2019, the main floor furnace and HVAC were replaced in 2021, the upstairs A/C was replaced in 2023, and the tankless water heater was added in 2023. The community features a playground and lake access for launching personal watercraft onto Lake Wylie and is less than a mile from Starbucks, Publix, Walmart, Lowes and all of the shopping and restaurants in Lake Wylie.
| MLS#: | 4306706 |
| Price: | $525,000 |
| Square Footage: | 3047 |
| Bedrooms: | 4 |
| Bathrooms: | 3 |
| Acreage: | 0.22 |
| Year Built: | 2012 |
| Type: | Single Family Residence |
| Listing courtesy of: | Better Homes and Garden Real Estate Paracle - ewalker@paraclerealty.com |
Contact An Agent:











































